
Descrizione:
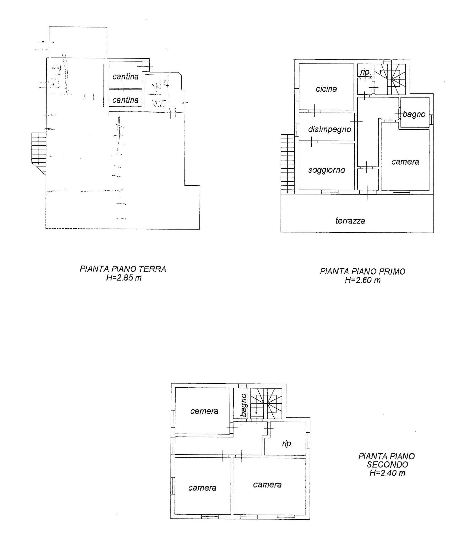
Questa casa indipendente, precedentemente adibita a ristorazione e B&B, è perfetta per chi cerca un investimento turistico. Situata lungo la strada principale per Pieve di Cadore. Con una superficie commerciale di 300 m² e 12 locali, l'immobile si sviluppa su due piani, con un ampio piano terra dotato di una grande sala con meraviglioso caminetto e un bancone da bar, ideale per accogliere gli ospiti.
Tramite una scala esterna si accede al piano superiore, una grande terrazza coperta offre un'area rilassante, mentre la zona ricettiva comprende un salotto-cucina, una camera da letto e due bagni. Il secondo piano ospita tre camere aggiuntive, un ripostiglio e un ulteriore bagno, perfetto per le famiglie o per gruppi di amici in vacanza.
Non dimenticare la cantina e l'ampio ripostiglio per biciclette situati nel retro del piano terra, utili per gli amanti della natura e delle escursioni.
Costruita nel 1960, l'immobile è in buono stato e pronto per essere personalizzato secondo le proprie esigenze. Con un orientamento sud-est, gode di una luminosità naturale che rende ogni ambiente accogliente. Non perdere questa occasione imperdibile di investire in una proprietà con grande potenziale turistico!
Posizione panoramica
2 piani
12 locali
3 bagni
Doccia
Stato: buono
Anno di costruzione: 1960
300 m² commerciali
270 m² calpestabili
Orientamento: sud-est
Scarica qui la planimetria
Riscaldamento autonomo: gasolio
Camino
Cantina
Classe energetica: in definizione
Semi arredato
Cucina
Posto auto


































































